Нишкова електроерозийна машина V1060

 

Технически параметри  Ед. V1060
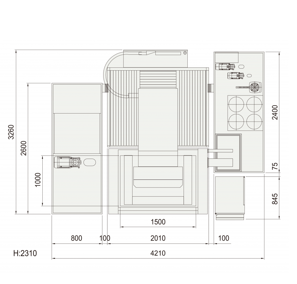
Максимални размери на обработваемия детайл (Д х Ш х В) mm 1500 x 1000 x 345
Максимално тегло на обработваемия детайл kg 3000
Преместване по X-ос mm 1000
Преместване по Y -ос mm 600
Преместване по Z -ос mm 350 x 500
Преместване по U -ос mm 160
Преместване по V -ос mm 160
Дебелина на металната нишка mm Ø 0.2 ÷ 0.33
Брой обработващи оси Сервомотор с 5 оси AC
Максимален ъгъл на рязане (с диамантен водач и дюза) deg/mm ± 30 ° / 100
Капацитет на електролитната вана L 1800
Минимално напречно подаване mm 0,0025
Вид на управлението Хидромеханично
Размери на машината (Д x Ш x В) mm 4210 x 3260 x 2310
Тегло на машината kg 7300
  • Йонообменна смола – 10 литра
  • Хартиен филтър – 2 бр.
  • Диамантени водачи – 2 бр.
  • Горни/долни почистващи дюзи – 2 бр.
  • Наелектризиращи плочи – 2 бр.
  • Месингова нишка – 1 ролка
  • Затягащ инструмент – 1 комплект
  • Вертикално изравняващо устройство
  • Линейни скали по осите X и Y
  • Затягаща греда
  • AWT система за резбонарязване
  • AVR регулатор на U (15 kVa)
  • Трансформатор 15 kVa
  • Система за кратки съобщения SMS
  • Система за отдалечен мониторинг
  • Цикъл на супер финишна обработка
  • Ос W
  • Подаващо устройство Jumbo L-50A
  • Двойна врата
  • Автоотваряне на вратата (Само за моделите V650G и V850G)

ЗАПИТВАНЕ ЗА МОДЕЛА